[toc]
本章关注如何修改 LATEX 的排版样式。
一、字体和字号
LaTex 提供了两组修改字体的命令,如下图。其中诸如 \bfseries 形式的命令将会影响之后所有的字符,如果想要让它在局部生效,需要用花括号分组,也就是写成 {\bfseries ⟨some text⟩} 的形式;对应的 \textbf 形式带一个参数,只改变参数内部的字体,更为常用。

下图列出了字号命令在标准文档类中的绝对大小,单位为 pt。使用字号命令的时候,通常也需要用花括号进行分组,如同 \rmfamily 那样。


另外还有一个基础命令 \fontsize 用于设定任意大小的字号:\fontsize{⟨size⟩}{⟨base line-skip⟩},⟨size⟩ 为字号,⟨base line-skip⟩ 为基础行距,上图中的基础行距为 1.2。如果不是在导言区,\fontsize 的设定需要 \selectfont 命令才能立即生效,而上图的字号设定都是立即生效的。
文字装饰和强调
\underline 命令用来为文字添加下划线:
1
An \underline{underlined} text.
\underline 命令生成下划线的样式不够灵活,不同的单词可能生成高低各异的下划线,并且无法换行。ulem 宏包提供了更灵活的解决方案,它提供的 \uline 命令能够轻松生成自动换行的下划线:
1
2
An example of \uline{some
long and underlined words.}
二、段落格式和间距
长度
长度的数值 ⟨length⟩ 由数字和单位组成。常用的单位:
- pt 点阵宽度,1/72.27in
- bp 点阵宽度,1/72in
- in 英寸
- cm 厘米
- mm 毫米
- em 当前字号下大写字母 M 的宽度,常用于水平距离的设定
- ex 当前字号下小写字母 x 的高度,常用于垂直距离的设定
一些情况下还会用到可伸缩的“弹性长度”,如 12pt plus 2pt minus 3pt 表示基础长度为 12pt,可以伸展到 14pt,也可以收缩到 9pt。也可只定义 plus 或者 minus 的部分,如 0pt plus 5pt。
长度的数值还可以用长度变量本身或其倍数来表达,如 2.5\parindent 等。
LaTex 预定义了大量的长度变量用于控制版面格式。如页面宽度和高度、首行缩进、段落间距等。如果需要自定义长度变量,需使用命令:\newlength{\⟨length command⟩}。
长度变量可以用 \setlength 赋值,或用 \addtolength 增加长度:
1
2
\setlength{\⟨length command⟩}{⟨length⟩}
\addtolength{\⟨length command⟩}{⟨length⟩}
行距
\fontsize 命令可以为字号设定对应的行距,但很少那么用。更常用的办法是在导言区使用 \linespread 命令:\linespread{⟨factor⟩}。
⟨factor⟩ 作用于基础行距而不是字号。缺省的基础行距是 1.2 倍字号大小,因此使用 \linespread{1.5} 意味着最终行距为 1.8 倍的字号大小。
如果不是在导言区全局修改,而想要局部地改变某个段落的行距,需要用 \selectfont 命令使 \linespread 命令的改动立即生效:
1
2
3
4
5
6
7
8
9
{\linespread{2.0}\selectfont
The baseline skip is set to be
twice the normal baseline skip.
Pay attention to the \verb|\par|
command at the end. \par}
In comparison, after the
curly brace has been closed,
everything is back to normal.
字号的改变是即时生效的,而行距的改变直到文字分段时才生效。如果需要改变某一部分文字的行距,那么不能简单地将文字包含在花括号内。注意下面两个例子中 \par 命令的位置,以及上一个例子的写法(\par 相当于分段):
1
2
3
{\Large Don't read this!
It is not true.
You can believe me!\par}
1
2
{\Large This is not true either.
But remember I am a liar.}\par
缩进
段落的左缩进、右缩进和首行缩进,与设置行距的命令一样,在分段时生效。
1
2
3
\setlength{\leftskip}{⟨length⟩}
\setlength{\rightskip}{⟨length⟩}
\setlength{\parindent}{⟨length⟩}
控制段落缩进的命令为:
1
2
\indent
\noindent
默认在段落开始时缩进,长度为用上述命令设置的 \parindent。如果需要在某一段不缩进,可在段落开头使用 \noindent 命令。相反地,\indent 命令强制开启一段首行缩进的段落。在段落开头使用多个 \indent 命令可以累加缩进量。
水平间距
LaTex 默认为将单词之间的“空格”转化为水平间距。如果需要在文中手动插入额外的水平间距,可使用 \hspace 命令:
1
2
This\hspace{1.5cm}is a space
of 1.5 cm.
\hspace 命令生成的水平间距如果位于一行的开头或末尾,则有可能因为断行而被舍弃。可使用 \hspace* 命令代替 \hspace 命令得到不会因断行而消失的水平间距。
命令 \stretch{⟨n⟩} 生成一个特殊弹性长度,参数 ⟨n⟩ 为权重。它的基础长度为 0pt,但可以无限延伸,直到占满可用的空间。如果同一行内出现多个 \stretch{⟨n⟩},这一行的所有可用空间将按每个 \stretch 命令给定的权重 ⟨n⟩ 进行分配。
命令 \fill 相当于 \stretch{1}。
1
2
3
x\hspace{\stretch{1}}
x\hspace{\stretch{3}}
x\hspace{\fill}x
数学公式中遇到的 \quad 和 \qquad 命令,也可以用于文本中,分别相当于 \hspace{1em} 和 \hspace{2em}。
垂直间距
使用 \vspace 命令可以人为增加两个段落间的垂直距离:
1
2
3
4
A paragraph.
\vspace{2ex}
Another paragraph.
\vspace 命令生成的垂直间距在一页的顶端或底端可能被“吞掉”,类似 \hspace 在一行 开头和末尾那样。对应地,\vspace* 命令产生不会因断页而消失的垂直间距。\vspace 也可用 \stretch 设置无限延伸的垂直长度。
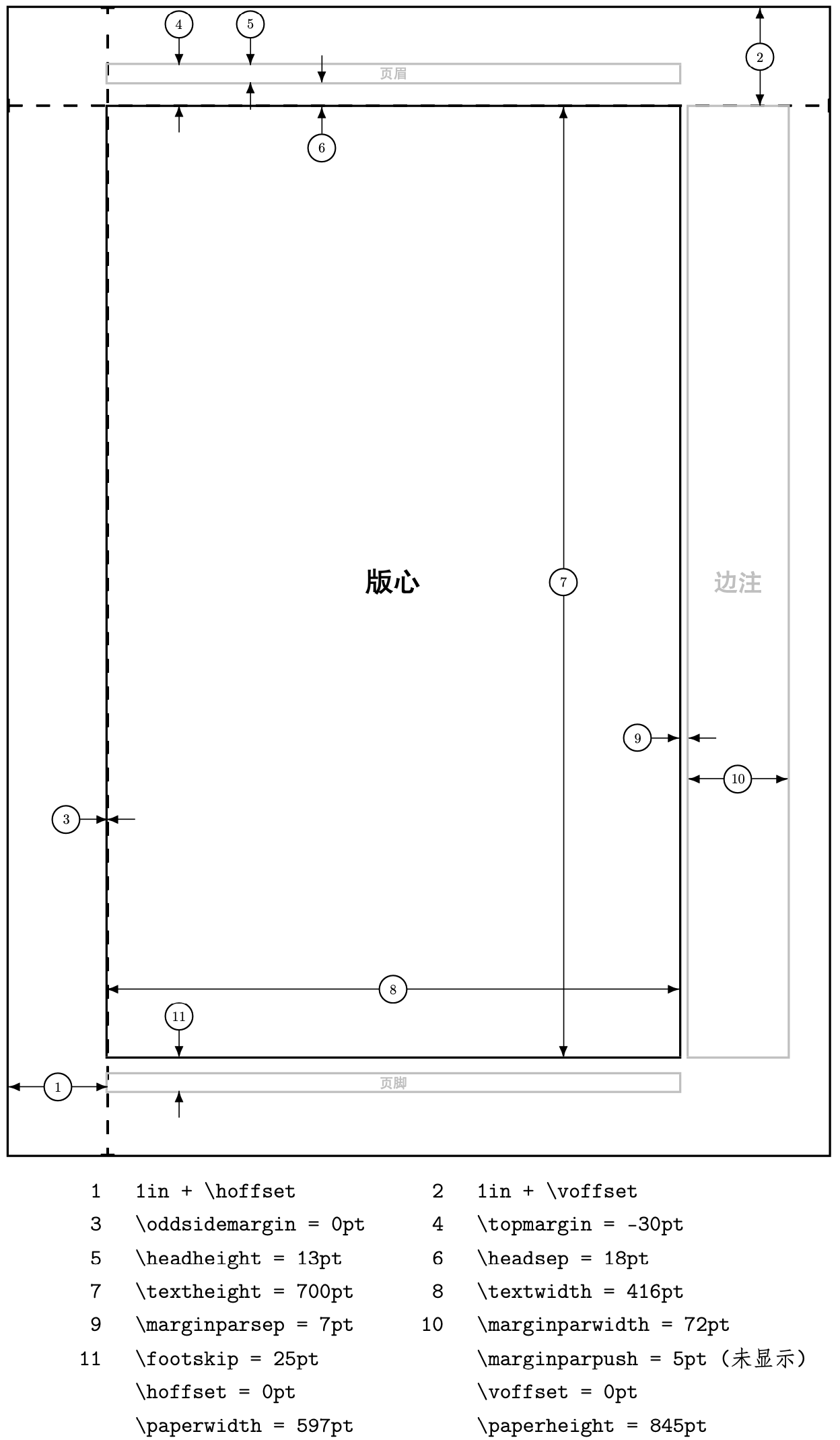
三、页面
控制页边距的参数由下图里给出的各种长度变量控制。可以用 \setlength 命令修改这些长度变量,以达到调节页面尺寸和边距的作用;反之也可以利用这些长度变量来决定排版内容的尺寸。

图中有些页边距的参数并不好设定,而 geometry 宏包提供了设置页边距等参数的简便方法。
geometry 宏包可以通过两种方式进行设定:
调用 geometry 宏包然后用其提供的
\geometry命令设置页面参数1 2
\usepackage{geometry} \geometry{⟨geometry-settings⟩}
将参数指定为宏包的选项
1
\usepackage[⟨geometry-settings⟩]{geometry}
比如,符合 Microsoft Word 习惯的页面设定是 A4 纸张,上下边距 1 英寸,左右边距 1.25 英寸,可以通过如下两种等效的方式之一设定页边距:
1
2
3
\usepackage[left=1.25in,right=1.25in,top=1in,bottom=1in]{geometry}
% or like this:
\usepackage[hmargin=1.25in,vmargin=1in]{geometry}
又比如,需要设定周围的边距一致为 1.25 英寸,可以用更简单的语法: \usepackage[margin=1.25in]{geometry}。
对于书籍等双面文档,习惯上奇数页右边、偶数页左边留出较多的页边距,而书脊一侧的奇数页左边、偶数页右边页边距较少。可以这样设定:
1
\usepackage[inner=1in,outer=1.25in]{geometry}
geometry 宏包本身也能够修改纸张大小、页眉页脚高度、边注宽度等等参数。更详细的用法可以查阅 geometry 宏包的帮助文档。
四、页眉页脚
命令 \pagestyle 用来修改页眉页脚的样式:\pagestyle{⟨page-style⟩}。
命令 \thispagestyle 只影响当页的页眉页脚样式:\thispagestyle{⟨page-style⟩}。
⟨page-style⟩ 参数为样式的名称,预定义的有四类样式:
- empty,页眉页脚为空
- plain,页眉为空,页脚为页码。(article 和 report 文档类默认;book 文档类的每章第一页也为 plain 格式)
- headings,页眉为章节标题和页码,页脚为空。(book 文档类默认)
- myheadings,页眉为页码及
\markboth和\markright命令手动指定的内容,页脚为空。
headings 样式:
- article 文档类,twoside 选项偶数页为页码和节标题,奇数页为小节标题和页码
- article 文档类,oneside 选项页眉为节标题和页码
- book/report 文档类,twoside 选项偶数页为页码和章标题,奇数页为节标题和页码
- book/report 文档类,oneside 选项页眉为章标题和页码
命令 \pagenumbering 用来改变页眉页脚中的页码样式:\pagenumbering{⟨style⟩}。
⟨style⟩ 为页码样式,默认为 arabic(阿拉伯数字),还可修改为 roman(小写罗马数字)、 Roman(大写罗马数字)等。注意使用 \pagenumbering 命令后会将页码重置为 1。